Laan van Nieuw Oosteinde 92, 2274 EJ Voorburg
Laan van Nieuw Oosteinde 92, 2274 EJ VoorburgBeschrijving
-
Beschrijving:
Deze moderne benedenwoning met ruime tuim op het Zuid Westen is instap klaar! De woning is geheel voorzien van nieuwe houten vloeren, muren, plafonds met spots, stuc- schilderwerk, deurkozijnen, paneeldeuren, openslaande deuren, keuken, badkamer, sanitair, tegelwerk en ventilatie.
In de omgeving bevinden zich diverse speelgelegenheden, parken, scholen, winkels en speciaalzaken. Binnen 1 autominuut naar uitvalswegen (A12 en A4) en het openbaar vervoer (Station Voorburg en Laan van NOI), het gezellige oude centrum van Voorburg en de Theresiastraat liggen op loopafstand. Via Laan van NOI 4x per uur een intercity naar Amsterdam/Haarlem/Schiphol/Delft en Rotterdam. Meerdere tram en bussen naar Den Haag.
VERKOCHT
Overdracht
- Toestand: Verkocht
Bouw
- Soort appartement: Benedenwoning, Appartement
- Woonlaag: 1
- Soort bouw: Bestaande bouw
- Bouwjaar: 1950
- Onderhoud binnen: Uitstekend
- Onderhoud buiten: Uitstekend
Indeling
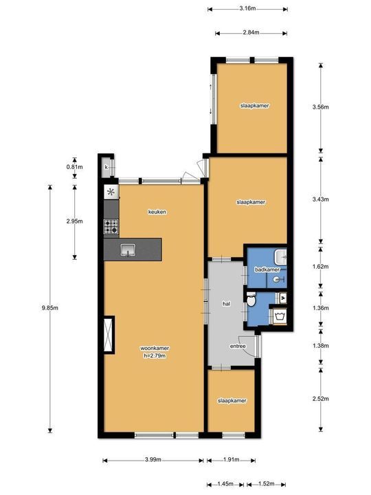
- Woonoppervlakte: 81 m²
- Aantal kamers: 4
- Aantal slaapkamers: 3
- Aantal badkamers: 2
- Aantal verdiepingen: 1
- Voorzieningen: Rolluiken, TV-Kabel, Buitenzonwering, Zonnepanelen, Schuifpui
Energie
- Isolatie: Dubbel glas
- Warm water: C.V.-ketel
- Verwarming: C.V.-ketel
- Ketel: Remeha (2016, Eigendom)
Buitenruimte
- Ligging: In woonwijk
- Tuin: Achtertuin, Voortuin
- Balkon: Ja
- Schuur: Vrijstaand hout, Box